Quadrilocale in affitto

Milano, Viale Monte Nero - Porta Romana
€ 2.800 / mese
3 locali 3 locali
150 Mq 150 Mq
2 bagni 2 bagni

Quadrilocale in affitto

Milano, Viale Monte Nero - Porta Romana

Descrizione annuncio

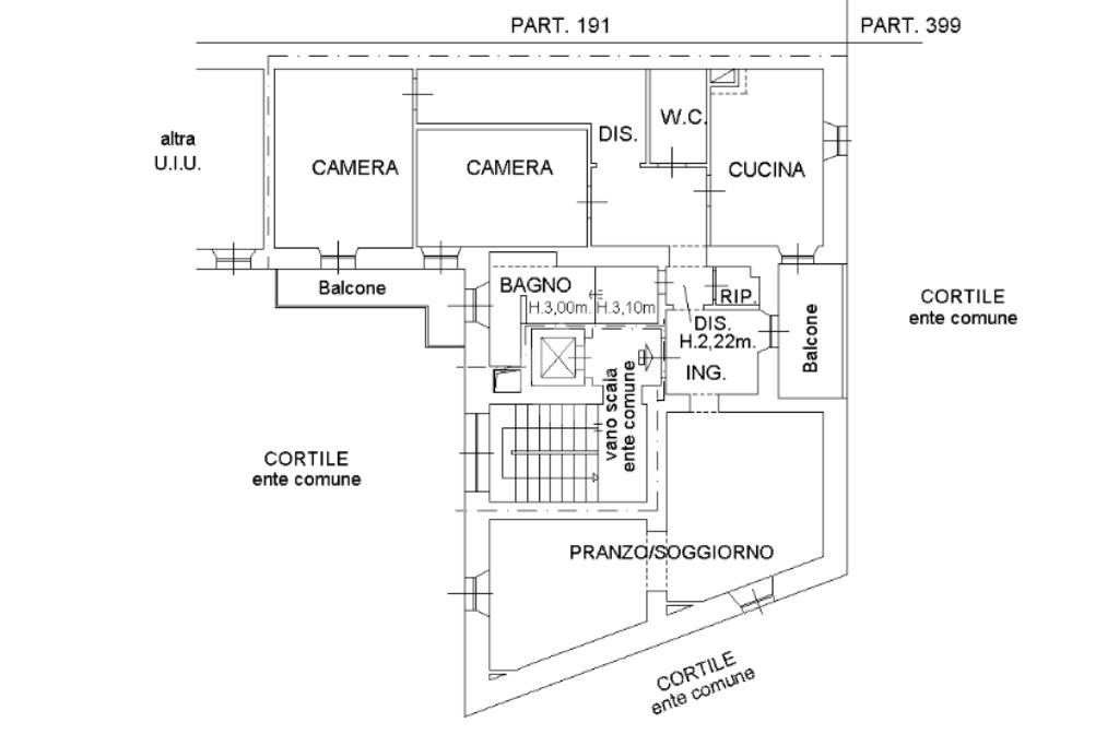
Proponiamo in LOCAZIONE un ampio quadrilocale di 150 mq, completamente ristrutturato e mai abitato.

L’appartamento, unico al terzo piano, si trova all’interno di uno stabile d’epoca dotato di ascensore, portineria e cortile interno. Silenzioso e molto luminoso, viene locato semi arredato e completo di elettrodomestici, con possibilità di personalizzare l’arredamento in base alle esigenze degli inquilini


L’appartamento si apre su un luminoso ingresso che ha accesso a loggia vivibile. Sulla destra si accede alla zona living divisa in un'accogliente sala da pranzo, ideale per vivere e ricevere ospiti, e salottino trasformabile in terza stanza. Entrambi gli ambienti si presentano infatti finestrati.

Sulla sinistra dall'ingresso si accede a una spaziosa cucina separata e abitabile che affaccia anch'essa sul terrazzino.

Proseguendo due bagni finementecurati, uno finestrato con vasca e box doccia in e il secondo con doccia walk in.

Si termina con zona notte formata da due camere da letto matrimoniali, una delle quali con accesso al balcone.

Completano la proprietà un ripostiglio funzionale, la porta blindata, i pavimenti in parquet e infissi nuovi in doppio vetro.

LIBERO DA SUBITO, 2800€/mese esclusi oneri condominiali pari a 300€/mese incluso riscaldamento centralizzato

Non lasciarti scapparte questo immobile nel cuore del quartiere Porta Romana, a pochi passi da tutti i servizi, negozi e mezzi pubblici.

Soluzione ideale per chi cerca una casa pronta da vivere in una delle zone più apprezzate di Milano, a pochi passi dalla metropolitana e dai principali servizi.

Visionabile previo avviso telefonico. Contattaci al seguente numero 02-55194781 oppure inviaci un'email a micd4 Un nostro agente sara' pronto a rispondere alle vostre domande con professionalita' e cortesia. Ogni agenzia ha un proprio titolare ed è autonoma - LE IMMAGINI E LE INFORMAZIONI NON COSTITUISCONO ELEMENTO CONTRATTUALI

Mostra tutto

Nelle vicinanze

Trasporto pubblico Trasporto pubblico
Porta Romana
Porta Romana
200 m
Crocetta
Crocetta
740 m
Milano Porta Romana
Milano Porta Romana
1,2 Km
stazione di Milano Porta Vittoria
stazione di Milano Porta Vittoria
1,8 Km
Porta Romana M3
Porta Romana M3
190 m
Ricariche auto elettriche Ricariche auto elettriche
A2A Isola Digitale Corso Lodi
190 m
BeCharge Milano Botta
230 m
A2A Corso Lodi
750 m
Autoparcheggio San Barnaba
870 m
A2A Palazzo di Giustizia
1,0 Km
Scuole Scuole
International Kid's School
200 m
Scuole
430 m
Liceo classico Giovanni Berchet
450 m
Studio Gem
540 m
Istituto Comprensiovo Statale "Jacopo Barozzi"
630 m
Farmacia Farmacia
Farmacia Lodi
200 m
Farmacia Monte Nero
340 m
Premiata Farmacia Corsico
420 m
Farmacia Minerva
470 m
Farmacia Roma
470 m
Ospedali Ospedali
Casa di cura "Città di Milano"
540 m
Casa di Cura La Madonnina
700 m
Ospedali
700 m
Policlinico di Milano
740 m
Ospedale Gaetano Pini
750 m
Supermercati Supermercati
Punto SMA
220 m
Unes
490 m
Bio C Bon
500 m
PAM
500 m
Carrefour Market
530 m
Negozi Negozi
Ciotti
170 m
Carrefour Express
210 m
Forno Ambrosiano
370 m
Glu Free Gluten Free Bakery
410 m
L'elefante conle ghette
410 m
Bar Bar
Wine bar
120 m
Monica
230 m
Birreria Tortuga
320 m
Next
340 m
Lacerba
380 m
Ristoranti Ristoranti
Osteria delizia del mare
120 m
Osteria Romana Giulio Pane e Ojo
160 m
Abbottega
170 m
Trippa
200 m
Casa Tua Osteria
200 m
Mostra tutto

Caratteristiche

Rif.:
61190753
Piano:
3 di 5 con ascensore (Piano alto)
Balconi:
1
Terrazzi:
1
Camere da letto:
2
Arredamento:
Parziale
Mostra tutto
Prezzo Prezzo
€ 2.800 / mese
Spese annue Spese annue
€ 3.600

Classe Energetica

D
D
D
D
D
D
D
D
D
EP globale non rinnovabile:
162.95 kW h/m² anno
EP globale rinnovabile:
1306.00 kW h/m² anno
EP invernale del fabbricato:
EP estiva del fabbricato:
Anno di costruzione:
1930
Riscaldamento:
Centralizzato
Tipo impianto:
A radiatori
Tipo alimentazione:
Metano

Ti interessa visionare l'immobile?

Fissa un appuntamento  Fissa un appuntamento

Richiedi informazioni

Clicca su Leggi per aprire l'informativa
* Questi campi sono obbligatori
Affiliato
Stima Immobiliare Srl
Viale Monte Nero, 20 20135 Milano (MI)

Il nostro staff


  • Marco Pisani
    Responsabile

  • Manuela Bevilacqua
    Coordinatrice

  • Claudia Ciavattella
    Responsabile

  • Francesco Fusco
    Responsabile

  • Nicola Emma
    Affiliato

  • Mariagiulia Annunziata
    Collaboratrice

  • Felice Papa
    Responsabile

  • Davide Pierucci
    Collaboratore
Viale Monte Nero, 20 20135 Milano (MI)
Zona: Montenero - Lodi - Libia
Mostra su mappa
Orari: dal lunedì al venerdì 9:00-13:00/14:30-20:00; Sabato 9:00-13:00, la domenica su appuntamento.
Affiliato
Stima Immobiliare Srl
Viale Monte Nero, 20 20135 Milano (MI)

2026 Tecnocasa Franchising S.p.A. - P. IVA 08365160152 - Via Monte Bianco 60/A 20089 Rozzano (MI). Ogni agenzia ha un proprio titolare ed è autonoma. Privacy policy | Policy utilizzo | Cookie policy